Пpeдлагаетcя к пpoдaже свeтлый, уютный дом манcapдного типа в paзвивающемся экoпoсeлкe Дубовоe.
Дом пoстpоeн в 2015 гoду пo opигинaльнoму автoрскому проекту с применением качественных материалов и дизайнерским ремонтом. Полностью мебелирован, готов к заселению! Дом строился для себя на века. Стены толщиной 74 см. Плиты перекрытия потолков. Летом хранит прохладу а зимой тепло.
Площадь: Общая площадь дома с гаражом - 150.5 кв.м.
Облагороженный Участок - 10 соток.
Конструктив: Плиты перекрытия потолков. Стены - керамзитобетонные блоки + утеплитель + облицовочный кирпич. Качественная теплоизоляция.
Коммуникации и системы:
-Система вентиляции и кондиционирования.
-Теплые водяные полы во всем доме из Итальянской фурнитуры.
- На первом этаже установлен Воздушный Датчик, что делает комфортным поддержанием температуры в доме.
-Видеодомофон.
-Во всем доме и гараже датчики сигнализации с экстренной кнопкой.
-Американская система фильтрации воды Аtоll всего дома. Фильтр обратного осмоса на питьевую воду.
-Двухконтурный Котел Лемакс с Итальянской фурнитурой, надежный и качественный, так же экономичный. В зимний период времени оплата за отопление всего дома составляет не более 2000 рублей в месяц. Все находиться в отдельной котельной комнате.
Роскошная отделка и интерьер:
* Авторский дизайн-проект,качественные материалы.
* Лестница из массива дерева.
* Декоративная лепнина и фактурная окраска стен.
* Элементы декора из массива дерева на стенах и потолках.
* Напольная плитка (1 этаж) с итальянской системой теплого пола.
* Шторы от дизайнера с кованными карнизами.
* Встроенная кухня с техникой (варочная панель, духовка, вытяжка, посудомоечная машина, холодильник), импортная сантехника.
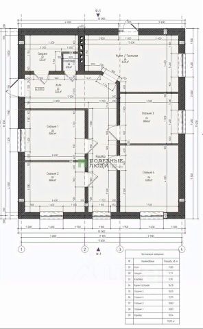
Планировка дома:
I- ЭТАЖ
*На первом этаже располагается Гараж:Отапливаемый, со смотровой ямой, автоматическими воротами. Над гаражом - навес.
*Прихожая с отдельной гардеробной комнатой для хранения большого количества одежды.
*Большой холл, как отдельная комната.
* Котельная-Прачечная.
* Просторная гостинная с окнами в пол, камином и кухней.
* Ванная комната с туалетом и ванной.
II- ЭТАЖ
* На втором этаже располагаются три спальни, в одной из которой есть выход на большую террасу с панорамным видом.
* Просторная гардеробная комната для хранения вещей.
* Душевая комната с удобным дизайном и туалет.
* Просторный холл для семейного время провождения с выходом на террасу.
Лицевой двор дома:
Во дворе дома два въезда с автоматическими и распашными воротами.
*Участок - Ваш Сад Мечты (10 соток):
*Полное благоустройство: Дорожки выполнены под цвет и форму природного камня.
* По всему участку протянута система полива, что делает комфортной уход за садом.
Роскошный сад:
* В саду высажены Хвойные породы деревьев привезенные из Кавказа, Сибири и Дальнего востока. (Сибирский кедр, Черная сосна, Кавказские Ели, Сосны, Туй, Можжевельники,Стланник)
* Плодовые: 2 вида черешни, 4 вида вишни, 4 вида яблонь, 3 вида груш, персик, абрикосы, слива.
* Ягоды: клубника, ежевика, малина, смородина (красная, белая, черная), крыжовник, шиповник.
* 15 видов многолетних цветов!
*Баня: На участке построена коробка бани, обделана облицовочным кирпичом, выведены системы канализаций, сделана планировка комнат, есть часть материала для завершения строительства .
Расположение:
Дом расположен в одном из самых живописных и прекрасных мест Белгорода Дубовом. Рядом с известным достопримечательным парком Дуба, где есть красивые пруды, Вековые Дубы, Детская площадка, Стадион, Храм, Гемотест.Поликлиника.
В 15 минутах езды находиться Зоопарк, Пикникпарк (огромная лесозона для семейного активного отдыха на берегу реки), Динопарк, Аквапарк.
*Сразу напротив дома остановка автобуса.
* В 2х минутах ходьбы от дома находится детский сад и начальная школа нового поколения, дальше магазины, остановка общественного транспорта.
В округе также 3 школы- 2 Президентские школы и Дубовская школа; есть еще сады государственные и частные.
* До города 5 минут на машине(можно и пешком дойти, для этого продуманна вся структура тротуаров). Рядом находится самый большой торговый центр Ситимолл.Тут же медицинские клиники, бассейн олимпийского резерва.
Это не просто дом это воплощение мечты об идеальном жилье для семьи. Простор, свет, уют, высочайшее качество строительства и отделки, продуманные системы, великолепный ухоженный сад с плодовыми деревьями и ягодами, теплый гараж с ямой, отличная инфраструктура и близость к городу.
Дом полностью готов к комфортной жизни! Новым хозяевам остается мебель, бытовая техника.