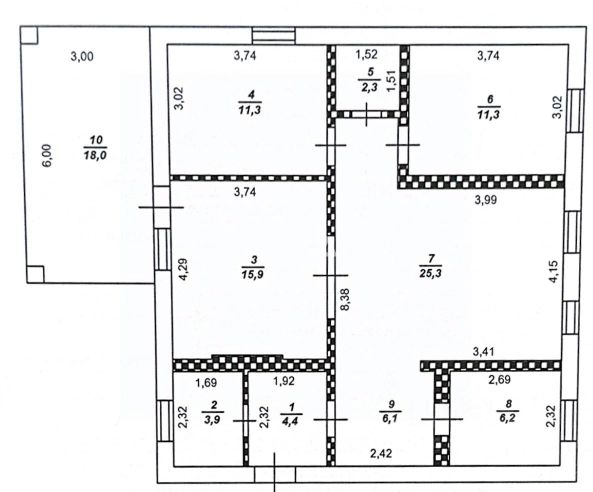
Продается современный дом в поселке Стрелецкое- 73/1 , готовый к заселению апрель 2026 года. Объект подходит для оформления семейной ипотеки, что делает его выгодным вариантом для молодых семей. Участок ровный, с приятным видом, что создает комфортную атмосферу для проживания. Дом расположен в зоне развитой инфраструктуры: в шаговой доступности находятся магазины, школы, детские сады и остановка общественного транспорта, обеспечивающая удобную связь с городом. Здание построено из энергоэффективного материала — газоблока(Аэробел), дополнительно облицованного кирпичом с использованием баварской кладки, что обеспечивает не только эстетичный внешний вид, но и высокие теплоизоляционные свойства. Планировка дома продумана для комфортного проживания: три спальни, просторная кухня-гостиная, два санузла и терраса площадью 15 кв. м, позволяющая наслаждаться отдыхом на свежем воздухе. По всему дому проложена система теплого пола, что гарантирует равномерный обогрев и повышенный уровень комфорта в холодное время года. В стоимость включена чистовая отделка: выполнена разводка электричества и водоснабжения, стены оштукатурены и покрыты финишным слоем, потолки подшиты гипсокартоном, что позволяет новым владельцам сразу приступить к оформлению интерьера без дополнительных затрат на ремонт. Дом оформлен на одного собственника, сделка проходит безопасно и прозрачно. Возможна организация просмотра для заинтересованных покупателей. Код пользователя: 52874 Номер в базе: 10644257 Продам дом на улице Советская в селе Стрелецкое.
































































