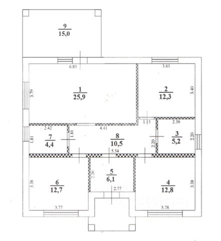
Дом в пригороде Белгорода с. Шагаровка Подходит под семейную ипотеку, сертификат, спецсчет по переселению! Продажа от юрлица! В доме 3 спальные комнаты, просторная кухня-гостиная с выходом на террасу, ванная комната, санузел, котельная, коридор! Фундамент: ленточный глубиной 1,2 м, стены: блок Аэробел + кирпич облицовочный. Крыша-металлочерепица. Перекрытие утеплено 150 мм. Качественные пластиковые окна. Все коммуникации центральные, заведены в дом. Выполнена улучшенная чистовая отделка. Возможно сделать под ключ. Строительство по всем строительным нормам. Юридически чистые документы, быстрое оформление. Показ в удобное для Вас время. Торг обсуждается на месте. Код пользователя: 157731 Номер в базе: 11744003










































































