Только на Циан
9 000 000 ₽
Продается два дома, хороший выбор для большой семьи.
Дом общей площадью 82 м.кв + второй дом 132 м.кв. Свет, газ, вода- централизованные,
канализация (септик). Каждый дом отапливается отдельно.
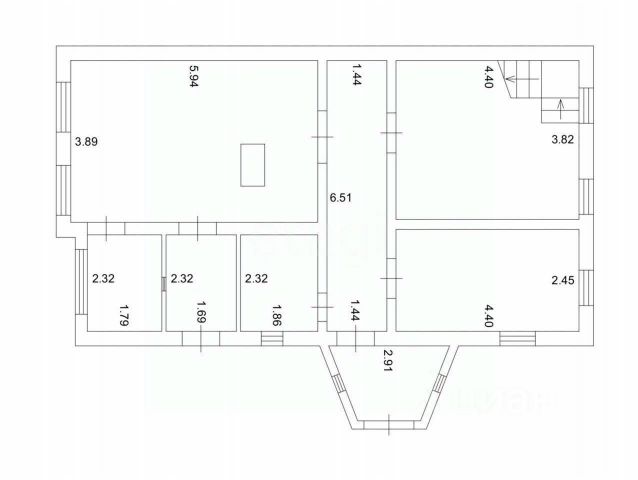
Первый дом:
Спальная комната 10.8 м.кв,
большой зал 21 м.кв,
детская 8 м.кв,
гостинная 17.8 м.кв,
просторная кухня 12 м.кв,
совмещенный с/у , 4.7 м.кв,
котельная.
Дом кирпичный, утеплен и отделан короедом. Крыша металлочерепица. В доме произведен
качественный новый ремонт с использованием дорогих материалов. Во всем доме двухуровневые
подвесные потолки с точечным освещением. Напольное покрытие ламинат. Установлены: новые м/к
двери, окна и трубы ПВХ, итальянские радиаторы с терморегуляцией. С/у отделан плиткой, с
дополнительной вытяжкой. На отопление и горячую воду установлен двухконтурный котел фирмы
(BAXI).
Второй дом:
1 эт:
Прихожая 3 м.кв,
большая кухня 15 м.кв,
спальная комната 11 м.кв,
спальня 11 м.кв,
гостевая комната 16 м.кв,
с/у совмещенный,
котельная.
2эт:
коридор
2 спальни по 15 м.кв,.
Дом был построен в 2010 г. для себя с использованием дорогих и качественных материалов.
В доме произведен качественный ремонт. Установлены: окна ПВХ, трубы ПВХ, итальянские
радиаторы с терморегуляцией. Напольное покрытие в комнатах ламинат, на кухне линолеум.
Двухуровневый потолок. С/у отделан плиткой. На отопление установлен двухконтурный котел фирмы (HEC). В подарок новым владельцам остается встроенный кухонный гарнитур. Участок большой, огорожен со всех сторон. Также есть надворные постройки (баня с черновой отделкой, большая кладовая, крытая беседка, глубокий подвал. Двор облагорожен и вымощен тротуарной плиткой
Удачное расположение дома вдали от магистрали придает уют и тишину. Хорошо развитая инфраструктура с хорошим транспортным сообщением. В шаговой доступности продуктовые магазины, остановка общественного транспорта, школа (34), д/сад, церковь.
Показы по договоренности!
Звоните в любое время.
Специалист по недвижимости Павел Владимирович Продается дом на улице Дальняя Комсомольская в городе Белгород.















































































