Только на Циан
дом сдан
8 578 700 ₽
130 000 ₽/м²
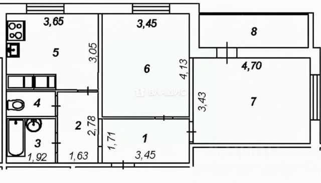
Продаётся 2-комнатная квартира в сданном доме (Квартал 1 Позиция 2), срок сдачи: IV-кв. 2017, общей площадью 65.99 кв.м., на 4 этаже. Расположение, транспортная доступность
Жилой микрорайон "Новая Заря" расположен в посёлке Разумное, в 8 км от центра Белгорода и главного железнодорожного вокзала. Дома комплекса окружены кварталами частных коттеджей и полями, район экологически чистый и благоприятный для жизни. Рядом проходит Вересковая улица, по которой можно за десять минут доехать на автомобиле до Объездной дороги или до железнодорожной станции Крейда, а за пятнадцать минут - к Соборной площади. В микрорайоне останавливается маршрутное такси 20, которое проезжает по южным окраинам Белгорода до улицы Ворошилова.
Инфраструктура
Внутри комплекса для жителей строятся: общеобразовательная школа на 1000 учеников - с бассейном, спортзалом и стадионом; торговый центр, детский сад на 100 мест с начальной школой, где смогут обучаться 200 учащихся. Первые этажи домов - продуктовые и хозяйственные магазины, аптеки, отделения банков, салоны красоты, кафетерии и бытовые службы. Владельцев домашних питомцев порадует открывшийся зоомагазин и ветеринарная аптека. За десять минут можно дойти до соседнего микрорайона Заря, где расположены: 3-этажный торговый центр, современная поликлиника "Полимедика" с детским и взрослым отделениями, супермаркеты "Пятерочка" и "Гермес".
Надежность застройщика
Компания "ЖБК-1" - лидер строительной отрасли Белгорода и один из старейших застройщиков в регионе. Предприятие создано в 1953 году, когда на базе строительно-монтажного управления 1 треста "Куркстрой" образовался трест "Белгородстрой". В 1993 году предприятие было акционировано и преобразовано в АО "Белгородский завод ЖБК-1", а в 2003 - выросло в многопрофильный холдинг с головным предприятием - ОАО "Завод ЖБК-1".
На счету компании - более 700 тыс. кв. м жилой недвижимости. Комплексы сдаются с полноценной внутренней инфраструктурой и благоустроенными дворами. На заводе выпускается более 10 тыс. наименований стройматериалов, что позволяет строить жилые дома из собственной продукции: с применением стеновых панелей (однослойных или трехслойных), облицовочных и стеновых камней, плит перекрытий, столярных и кованых изделий, тротуарной плитки.
Архитектура
Жилой комплекс "Новая Заря" состоит из пяти кварталов с панельными домами высотой от 5 до 9 этажей. Наружные стены выполнены из трехслойных панелей с утеплителем из пенополистирола и облицованы кирпичом контрастных оттенков: светло-серый, темно-коричневый, розово-красный. Некоторые здания украшены угловыми башнями, двухскатными секциями крыш.
В эксплуатацию сданы кварталы 1, 3, 5 и 6. В 1-м квартале готовы два корпуса по улице Преображенская: 7-этажный и 5-7-этажный. В 3-м квартале построены четыре 5-этажных корпуса, в 5-м квартале - два 5-этажных. В 6-м квартале расположены четырнадцать домов: один 6-этажный, шесть 7-этажных, четыре 9-этажных и три здания переменной этажности (от 7 до 9). Покупателям предос






























































