160 526 ₽/м²
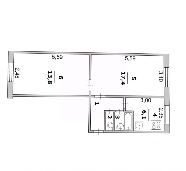
Код объекта: 1955441. ТЁПЛАЯ, ПРОСТОРНАЯ КВАРТИРА В КИРПИЧНОМ ДОМЕ !!! В тихом, спокойном месте, не далеко от центра города, на пересечении улиц Белгородский проспект, Вокзальная и Калинина, в кирпичном доме, продаётся отличная квартира общей площадью 38м2 (без учёта лоджии), на 2м этаже современного 7ми этажного дома 2013 года постройки, с системой рециркуляции воздуха ( " Умный дом" ). Квартира чистая и ухоженная (собственник постоянно следил за её состоянием) с удобной планировкой, которая позволит Вам рационально использовать всё имеющееся пространство, с большим коридором и довольно просторной кухней (9,4м2), имеющей выход на лоджию, на которой можно не только собраться вместе дружной семьёй, но и пригласить друзей. В квартире выполнен косметический ремонт поэтому ЗАЕХАТЬ И ЖИТЬ МОЖНО ПРЯМО СЕЙЧАС!!! Кирпичные стены (толщиной 60см.), установленные пластиковые стеклопакеты, застеклённая лоджия и выходящие во внутренний дворик окна, избавят Вас от шума и пыли дорог и сохранят тепло и уютно, даже в сильный мороз, а раздельный сан. узел не будет причиной дискомфорта по утрам. Новым владельцам остаётся всё что есть на фотографиях. Хорошим бонусом будет наличие большого и просторного тамбура на перед входом в квартиру на трёх хозяев. В доме чистый подъезд и спокойные соседи, есть грузовой лифт, что поможет Вам без труда поднять и опустить любые тяжёлые и объёмные вещи. Придомовая территория полностью облагорожена и содержится в чистоте, двор не проездной, поэтому дети могут спокойно играть на детской площадке, есть зона отдыха и игровая зона. Большим плюсом является наличие ПОДЗЕМНОГО ПАРКИНГА и парковочных мест во дворе. ПРЕКРАСНОЕ РАСПОЛОЖЕНИЕ и РАЗВИТАЯ ИНФРАСТРУКТУРА Дом хоть и расположен в тихом, спокойном месте, но при этом находиться что называется "в самом центре событий". Несколько минут пешей прогулки - и Вы в центе города. Микрорайон с развитой и устоявшейся инфраструктурой. Есть всё для комфортной жизни. В шаговой доступности находятся магазины, детские садики и школы, медицинские учреждения и аптеки, стоматологические клиники, банки, театр, филармония, кафе, рестораны, Ж.Д. Вокзал, городской пляж и т.п. Рядом с домом остановки общественного транспорта, и все основные транспортные развязки, это позволит вам быстро добраться в любую точку города и области. ЛЕГКО КУПИТЬ: Ипотека, наличные, военная ипотека, материнский капитал, Спец. Счёта (555 и 272) и все виды сертификатов, включая "Курский". Квартира полностью готова к продаже! Без долгов и ограничений! Звоните с 8:00 до 21:00. - согласуем время просмотра! Продается квартира квартир в Дзержинского 10 в Белгороде.

















































































