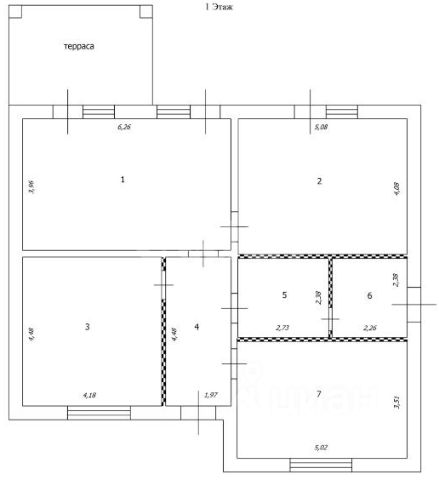
Продается просторный угловой дом общей площадью 147 кв. м на ухоженном участке в 10 соток в тихом, сложившемся районе. Планировка рациональна и рассчитана на комфортное проживание семьи: на первом этаже расположена светлая кухня с мебелью и встроенной техникой, изолированная гостиная и санузел с теплым полом. Второй этаж отведен под две изолированные спальни, каждая с собственной гардеробной, и второй санузел. Дополнительным преимуществом является цокольный этаж, который оборудован под мастерскую или может служить техническим помещением. Система теплых полов в прихожей и санузле обеспечивает комфорт в холодное время года. Инфраструктура района развита: в шаговой доступности находятся два супермаркета, больница, пункты выдачи заказов, а в 2х минутах ходьбы — общеобразовательная школа, при этом в непосредственной близости завершается строительство нового современного учебного заведения. Дорога до центра города на автомобиле занимает не более 15 минут. Территория полностью благоустроена: асфальтированный подъезд и двор, отдельный гараж, уютная летняя беседка, соединенная с домом дорожкой из декоративного камня. Участок не только практичен, но и эстетичен — здесь разбит сад с плодовыми деревьями, виноградником и цветочными клумбами, создающими особую атмосферу в летний период. Объект готов к заселению и сочетает в себе преимущества приватной загородной жизни с удобствами городской инфраструктуры. Код пользователя: 185517 Номер в базе: 11914824 Продается дом с участком 10 соток в селе Стрелецкое Белгородского района.



















































































