Мы используем куки-файлы. Соглашение об использовании
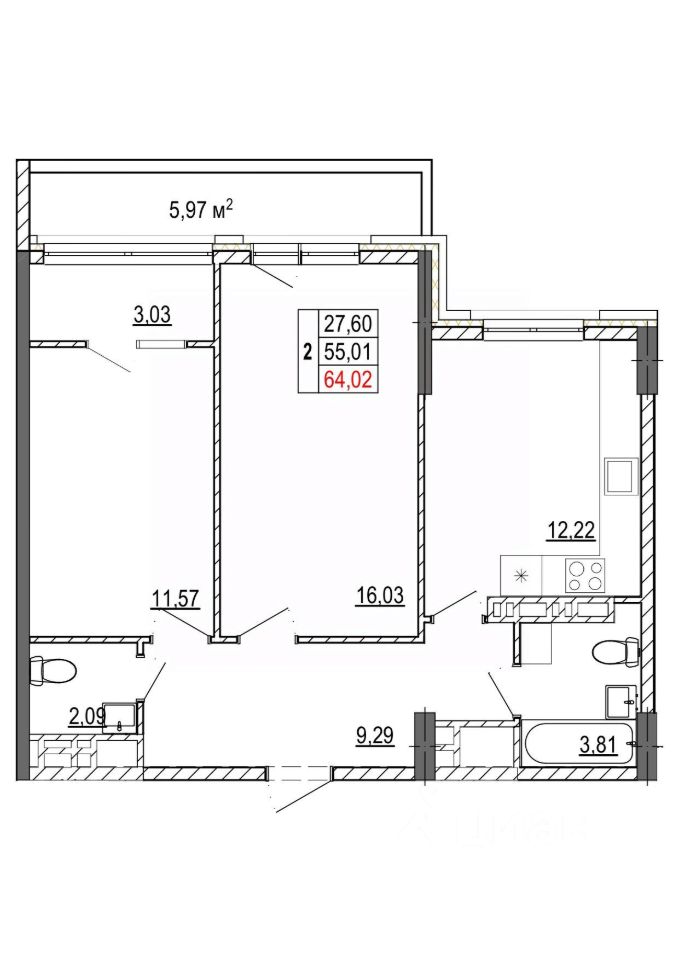
Общая площадь64,02 м²
Этаж2 из 14
Год сдачи2028
ДомНе сдан
ОтделкаПредчистовая
Продаётся 2-комнатная квартира в строящемся доме (поз. 4а), срок сдачи: IV-кв. 2028, общей площадью 64.02 кв.м., на 2 этаже. Новый жилой дом от застройщика "ДСК" расположен по адресу: г. Белгород, улица Разина, 6

О квартире

Тип жилья

Новостройка

Общая площадь

64,02 м²

Высота потолков

2,72 м

Отделка

Предчистовая

О доме

Количество лифтов

1 пассажирский, 1 грузовой

Тип дома

Монолитно-кирпичный

Понравилась квартира — узнайте о ней больше

Застройщик ответит на все вопросы

Отделка квартиры

Предчистовая — остаётся установить сантехнику, розетки, двери и навести красоту: поклеить обои и уложить на пол покрытие
Похоже на то, что вы ищете?

Акции в ЖК «Университет 2-я очередь»

Узнайте про персональные условия и дополнительные скидки при покупке квартиры у застройщика
Ипотечный калькулятор
  • Базовая
  • Семейная
  • ИТ-ипотека
  • 20%
  • 30%
  • 40%
  • 50%
лет
  • 10 лет
  • 20 лет
  • 30 лет
Загружаем предложения от застройщика и банков

Расположение

Ещё квартиры в жилом комплексе

25 квартир в продаже · Сдача в 4 кв. 2028
Агентство недвижимости
УГОЛ
  • 3 года 10 месяцев на Циане
  • 11 427 570 ₽
    Цена за метр
    178 500 ₽/м²
    Условия сделки
    долевое участие (214-ФЗ)
    Агентство недвижимости
    УГОЛ