Мы используем куки-файлы. Соглашение об использовании

Продается здание, 764 м²

Площадь764 м²
Этажность1
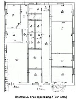
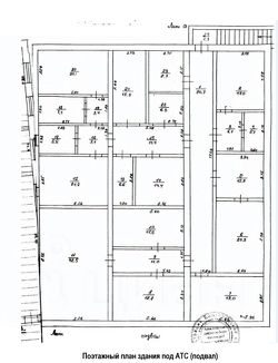
Продаются единым имущественным блоком объекты недвижимости, расположенные на земельном участке, в следующем составе: (раздельно объекты не продаются) 1) Здание автоматической телефонной станции, общей площадью 672,5 кв.м., кадастровый номер 31:23:0101001:11941. Год постройки: 1996 Планировка: смешанная Этажность: подвал + 1 этаж. Коммуникации: электроснабжение, отопление, водоснабжение и канализация. 2) Здание гаража, общей площадью 91,5 кв.м., кадастровый номер 31:23:0101001:3138. Год постройки: 1980 Планировка: под склад Этажность: 1 этаж Коммуникации: электроснабжение. 3) Земельный участок в собственности, общей площадью 1448,0 кв.м., с кадастровым номером 31:23:0602005:5, категория земель земли населенных пунктов, разрешенное использование для обслуживания объектов недвижимости. Объекты расположены в глубине квартала по адресу: Белгородская область, г. Алексеевка, ул. Ватутина, д. 4а, на удалении 9,1 км от центра города Алексеевка (за центр города принята площадь Победы). Основная застройка ближайшего квартала - индивидуальная жилая, развитая торговая застройка, территория на границе с промзоной. Доступность автомобильным транспортом без ограничений. Доступность общественным транспортом хорошая. Продается от собственника — ПАО "Ростелеком". Юридическая чистота сделки гарантирована. Стоимость указана с НДС 22%. Звоните! С удовольствием ответим на Ваши вопросы. По всем вопросам просьба связываться с контактным лицом.
lock

Войдите или зарегистрируйтесь
для просмотра информации

Просматривайте условия сделки и всю информацию об объекте
Сохраняйте фильтры в поиске и не вводите заново
Доступ к избранному с любого устройства
Неограниченное добавление в избранное
Позвоните автору
Вам ответят на все вопросы
Остались вопросы по объявлению?
Позвоните владельцу объявления и уточните необходимую информацию.
  • Инфраструктура
  • Похожие рядом
Помощь надёжных риелторов
Риелтор партнёр Циан поможет купить или продать любую недвижимость
6 480 000 ₽
90 793 $
77 430
Цена за метр
8 482 ₽
Налог
НДС включен: 1 168 524 ₽
Агентство недвижимости
Документы проверены