Мы используем куки-файлы. Соглашение об использовании
Помещение свободного назначения, 45,2 м²

Продается помещение свободного назначения, 45,2 м²

Площадь45,2 м²
Этаж2 из 8
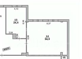
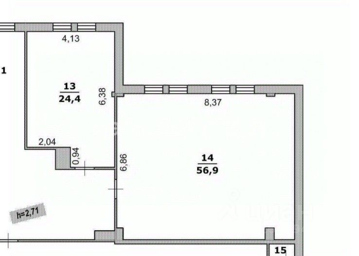
Арт. 129060521 ВАМ НУЖНО ЭФФЕКТИВНОЕ РАБОЧЕЕ ПРОСТРАНСТВО? ИЩЕТЕ УЖЕ ОФОРМЛЕННЫЙ ГОТОВЫЙ ОФИС ДЛЯ СОБСТВЕННОГО БИЗНЕСА? ИЛИ ХОТИТЕ ГОТОВЫЙ АРЕНДНЫЙ БИЗНЕС? НЕ УПУСТИТЕ ОТЛИЧНОЕ ПРЕДЛОЖЕНИЕ! * В ИСТОРИЧЕСКОМ ЦЕНТРЕ БЕЛГОРОДА (в 150 метрах от Привокзальной площади) предлагаются к покупке офисные помещения кабинетного типа с панорамным остеклением! * В ПРОДАЖЕ ОФИСНЫЕ ПОМЕЩЕНИЯ 14 ( 56,9 кв. м. ) и 18 ( 45,2 кв. м. ) на поэтажном плане, как единым лотом, так и по отдельности. * СОВРЕМЕННЫЙ БИЗНЕС ЦЕНТР по адресу Гражданский проспект, д.4 занимает три этажа в элитном многоквартирном жилом доме! Здание построено в 2008 году и расположено на первой линии. * КОМФОРТАБЕЛЬНЫЕ ОФИСЫ САМЫХ ВОСТРЕБОВАННЫХ ПЛОЩАДЕЙ (45, 2 кв. м., 56,9 кв. м.) Общая площадь продаваемых объектов ( 102,1 кв. м.) Рассмотрим различные варианты. ВОЗМОЖНОСТЬ РАЗДЕЛИТЬ (зонировать) ИЛИ ОБЪЕДИНИТЬ эти помещения. БЛАГОПРИЯТНОЕ СОСЕДСТВО с крупными компаниями и многолетними арендаторами ( Страховой Дом ВСК, Уральский банк реконструкции и развития, центр света ЭДИСОН и др.) УДОБНАЯ ТРАНСПОРТНАЯ РАЗВЯЗКА, место, где пересекаются все деловые потоки ВЫСОКИЙ АВТОМОБИЛЬНЫЙ И ПЕШЕХОДНЫЙ ТРАФИК УНИКАЛЬНАЯ ЛОКАЦИЯ в самом сердце столицы региона, в двух шагах от административных и культурных учреждений! ТОРОПИТЕСЬ! Ведь все помещения офисного центра сданы в аренду, а в продаже остались только эти площади! РАБОТАЙТЕ С КОМФОРТОМ, ЗАРАБАТЫВАЙТЕ С УДОВОЛЬСТВИЕМ! ДОБРО ПОЖАЛОВАТЬ В ВАШ НОВЫЙ ОФИС! #объект в нашей базе 13190170#
lock

Войдите или зарегистрируйтесь
для просмотра информации

Просматривайте условия сделки и всю информацию об объекте
Сохраняйте фильтры в поиске и не вводите заново
Доступ к избранному с любого устройства
Неограниченное добавление в избранное
Позвоните автору
Вам ответят на все вопросы
Остались вопросы по объявлению?
Позвоните владельцу объявления и уточните необходимую информацию.
  • Инфраструктура
  • Похожие рядом
  • Общая площадь45,2 м²
Помощь надёжных риелторов
Риелтор партнёр Циан поможет купить или продать любую недвижимость
Документы проверены
3 400 000 ₽
45 450 $
38 688
Цена за метр
75 222 ₽
Налог
НДС не включен
Агентство недвижимости
Документы проверены
На Циан
7 лет
Объектов в работе
110