Мы используем куки-файлы. Соглашение об использовании
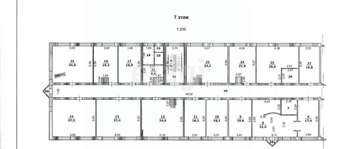
Площадь259 м²
Этаж7 из 9
Продается готовый арендный бизнес который стабильно приносит 129500₽ в месяц и индексируется каждый год на 10-15% с окупаемостью 7,4 года Офисное помещение находится в бизнес-центре по адресу: г. Белгород, проспект Б. Хмельницкого, д.133В. Помещение расположено на 7-ом этаже 8 этажного дома, общая внутренняя площадь 259 м2. Состоит из кабинетов на одном этаже, которые разделены между собой и могут использоваться как отдельные офисы, т.к. каждое из них имеет отдельный вход и все необходимые коммуникации. Есть возможность докупить кабинеты на этаже до 567 метров общей площади. Расположение данного объекта очень удачное для коммерции, есть место под фасадную рекламу. Имеет все коммуникации: водоснабжение, канализацию, теплоснабжение и энергоснабжение. Большая и просторная парковка напротив входа и за ним. Рядом остановка. Прекрасный вариант для сдачи в аренду. Стабильный бизнес с высокой доходностью. Помогаем в одобрением ипотеки под коммерческую недвижимость. Полное юридическое сопровождение сделки. Звоните, задавайте интересующие вопросы. Покажем в удобное для вас время. Код пользователя: 193239 Номер в базе: 7424368
lock

Войдите или зарегистрируйтесь
для просмотра информации

Просматривайте условия сделки и всю информацию об объекте
Сохраняйте фильтры в поиске и не вводите заново
Доступ к избранному с любого устройства
Неограниченное добавление в избранное
Позвоните автору
Вам ответят на все вопросы
Остались вопросы по объявлению?
Позвоните владельцу объявления и уточните необходимую информацию.
  • Инфраструктура
  • Похожие рядом
Помощь надёжных риелторов
Риелтор партнёр Циан поможет купить или продать любую недвижимость
Документы проверены
11 430 000 ₽
154 904 $
130 810
Цена за метр
44 132 ₽
Налог
НДС включен: 2 061 147 ₽
Агентство недвижимости
Документы проверены
На Циан
8 лет
Объектов в работе
более 3000