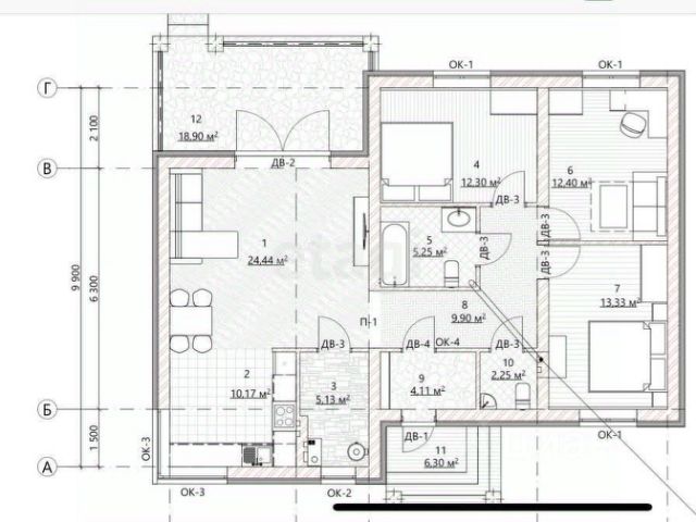
Вы ищете идеальный дом, где вы сможете наслаждаться комфортом и уютом? Тогда это объявление для вас! Дом строили для себя из качественных материалов не застройщик!. Продаётся уютный дом с 3 комнатами на 1 этаже 1 этажного здания. Дом готов для проживания. Общая площадь дома - 113 кв.м. Все коммуникации центральные, свет, газ, вода, канализация, есть дополнительно скважина. Участок 15 сот., ровный, огорожен забором, откатные автоматические ворота, калитка. Во дворе плитка. Дом находится в престижном районе, где важным критерием является комфорт и удобство. Рядом вся необходимая инфраструктура; детский сад, школа, магазины. Дорога асфальтирована. Дом построен из блоков Аэробел 400, облицован кирпичом. Фундамент 50х50 и сваи через 1,2 м. Крыша покрыта мягкой кровлей, окна пластиковые. По всему периметру дома система теплый пол, на полу ламинат, новые межкомнатные двери, везде натяжной потолок. В санузле плитка, новая сантехника. В котельной, котел, бойлер, дополнительно душевая кабина и унитаз. Высота потолков 3,1 м. В доме просторная кухня-гостиная 40 кв.м., с выходом на веранду. Две спальни, кабинет, санузел, котельная. Сделана лестница, которая ведет на второй мансардный этаж. На втором этаже возможно сделать две полноценные спальни и санузел, коммуникации имеются. Крыша утеплена. Этот элитный объект недвижимости станет прекрасным вариантом для молодых семей, которые ценят качество и уют. Ипотека подойдет для покупки этого дома, что немаловажно для многих покупателей. Не упустите возможность стать обладателем этого шикарного дома, который порадует вас своим комфортом и уютом! Позвоните прямо сейчас и узнайте больше информации об этом прекрасном объекте недвижимости. Ваш идеальный дом уже ждет вас! Звоните, работаем без выходных. Номер объекта: #1/539441/16811 Продажа домом с газом в микрорайоне Таврово-1 в селе Таврово.













