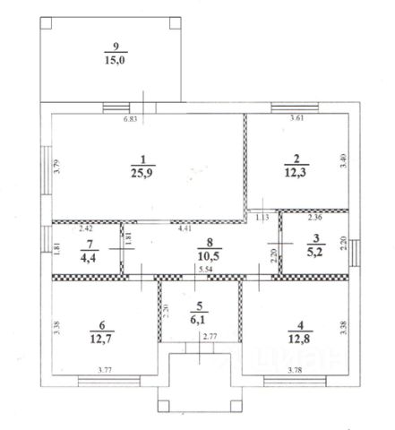
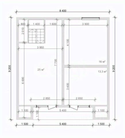
ПРИРОДА! Дом расположен в очень живописном месте, любителям природы стоит обратить особое внимание на данный участок с домом, который строился для "себя", а не на продажу. Стены из пеноблока - 40 см шириной (дом очень теплый, даже без облицовки, зимой в -15 в помещениях было +3), фундамент ленточный, более 120 см. В дом заведен свет, проведена канализация. Газ по улице проходит. Две изолированные спальни, два входа в дом, возможность планировки придомовой территории как у вас душа запросит. Крыша позволяет хранить межсезонные вещи, которых всегда много) Код пользователя: 175764 Номер в базе: 7447115
























































































