125 000 ₽/м²
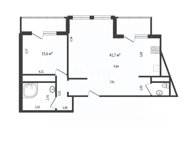
Продается эксклюзивная квартира в тихой части Харьковской горы с потрясающим видом на город! Квартира подготовлена под финишную отделку-весь внутренний периметр квартиры обложен керамическим кирпичом, произведена замена всей системы электроснабжения- заведено 3 фазы, установлены реле контроля напряжения на каждую фазу, полностью заменена система отопления, установлен дублирующий электрический контур контур отопления, переделан водопровод и канализация. Произведена замена наружного остекления на витражи из закаленного стекла в пол, сделан тамбур на две квартиры, чистовая стяжка пола, стены прошпаклеваны финишным слоем. И изюминка этой квартиры- выход на кровлю! С нее открывается потрясающий вид на все стороны света, здесь можно проводить летние вечера с друзьями, наслаждаться закатами и рассветами! Если вы ищите необычную квартиру-это ваш вариант! 2-комнатная квартира 2-комнатных квартир в Серебряная подкова в Белгороде.









































































